Es una residencia actual tipo villa que tiene aspecto muy singular por su estilo Posmoderno.
Se trata de una expresión de arquitectura que puede apreciarse como si se tratara de una escultura moderna.
La estructura de esta casa muestra perfiles que impresionan como vanguardistas casi futuristas pero en realidad es un diseño moderno, contemporáneo.
En este proyecto el diseño fue llevado hacia un extremo forzando las lineas más allá de lo convencional y así adquiere un carácter dinámico.
Alguien puede encontrar que parece inspirada en los chalés. Es una expresión de arquitectura rusa residencial contemporánea, obra de aspecto nítido, presentación impecable, que se encuentra ubicada en Moscú, y nos dice algo de la evolución del país.
![]() |
| Fachada principal de la moderna residencia en las afueras de Moscú |
Esta villa posmoderna cubre una superficie de 731 m2 sobre lote de terreno amplio, el proyecto y la construcción demandaron del 2004 al 2011 para completarla.
Es una obra de arquitectura realmente fascinante para el entendido y para cualquiera que la vea y descubra. La estructura se levanta sobre una colina rodeada de pinos jóvenes.
![]() |
| Perfil de la casa y sus balcones terraza |
El sitio cuenta con tres direcciones con hermosas vistas, sólo la vista al norte es menos atractiva y es la más fría, por ello el arquitecto decidió hacer pocas aberturas en esa orientación, prácticamente la fachada allí quedó cerrada.
![]() |
| Vista desde la casa, entorno de jardín y bosque de pinos |
El proyecto llevó a la idea de un plano plegado, el cual está algo elevado sobre el suelo y forma los espacios de la vivienda. Este particular diseño crea ambientes interiores y exteriores que sirven adecuadamente para las actividades y necesidades habituales en un hogar.
![]() |
| Detalle de un lado de la casa |
Así como por un lado la casa está cerrada, por el otro lado se abre al exterior, con ventanas orientadas convenientemente para captar el máximo de la iluminación natural durante el día. Usted puede notar la estructura de pliegues en esta casa por el espacio amplio interior donde las zonas públicas fluyen a áreas privadas y en sentido inverso.
![]() |
| Perspectiva desde el jardín, entre los árboles, desde atrás |
No hay diferencia en la cobertura exterior e interior. Si usted ve madera en el exterior, el ambiente interior también tiene ese material. Algunas de las ventanas, por ejemplo la del baño, están hechas como cortes en los planos del plegamiento y eso contribuye a ver su forma, allí hay ángulos vidriados cementados.
![]() |
| Vista de una de las terrazas |
Los arquitectos aquí trabajaron especialmente en el problema del grosor del plano plegado, para que se viera elegante y resultara funcional a la vez, la proyección del techo sobre las terrazas tiene unos 5 metros de largo.
![]() |
| Diseño con forma de plano en pliegues y despegado del suelo |
El tema arquitectónico de pliegues, también se usó para otras construcciones en el lote, así todo lo edificado se ve como la casa principal. Hay una cochera y un baño ruso en otra edificación separada, está parcialmente escondida en el parque, de tal modo que su techo sirve de plataforma de observación y en invierno se transforma en pista de hielo para patinar.
![]() |
| Construcción adicional en el terreno, cochera y baño ruso |
El estudio de arquitectura Atrium fue establecido en en año 1994, sus directores son Vera Butko y Anton Nadtochi.
Además de proyectos inmobiliarios, vienen trabajando en residencias privadas como la publicada en esta entrada, también en complejos residenciales de baja altura y cabañas de diseño, edificios administrativos, de oficinas, y de objetivo social.
![]() |
| Sala de estar, amplio espacio de plan abierto |
Los proyectos de Atrium obtuvieron numerosos premios en prestigiosos concursos y shows: Arch-Moscow, Golden Sechenie, ganó The building of the year – 2007, Arx Awards (2007), DIA (2004) y «Archip – 2002».
![]() |
| Baño principal de la casa con amplias aberturas vidriadas |
Fotografías de Yuri Palmin y Anton Nadtochiy. El equipo del proyecto estuvo formado por Anton Nadtochiy, Vera Butko, Ekaterina Golovanova y colaboraron ALuTerra y Alexander Ney.
![]() |
| El open plan mirando desde la sala hacia la cocina comedor |
Planos arquitectónicos de la casa, un corte y dos planos de las plantas.
![]() |
| Plano arquitectónico de un corte de la estructura de la casa |
Planta inferior, nivel del acceso principal y cocheras de la propiedad.
![]() |
| Plano de la planta de la casa a nivel del suelo |
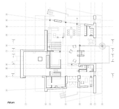
Plano de la planta superior de la residencia.
| Plano arquitectónico de la planta superior |












